MacroCare Office

Location: Bangkok, Thailand
Type: Architecture and Interior Design
Program: Office Building
Client: MacroCare Co.,Ltd.

Site Area: 1,225 sqm.
Built Area: 2,000 sqm.
Design: 2014-2016
Completion: 2019
Construction Cost: 70M baht

The architecture of MacroCare Headquarters seeks to reflect the character of a trusting Technology company and its motto  ‘Trusted Connection’. The interlocking masses and the tilting planes form a large void within the center of the building that not only functions a green space but draws the eye towards this large open space where social connection and interaction occurs within the company. While cutting away or subtracting from the large mass creates a void within the very center, this internal court is where visual connection within the different functions occurs as each program space look out into this large outdoor atrium, giving cohesion to the different departments that make up the MacroCare office.

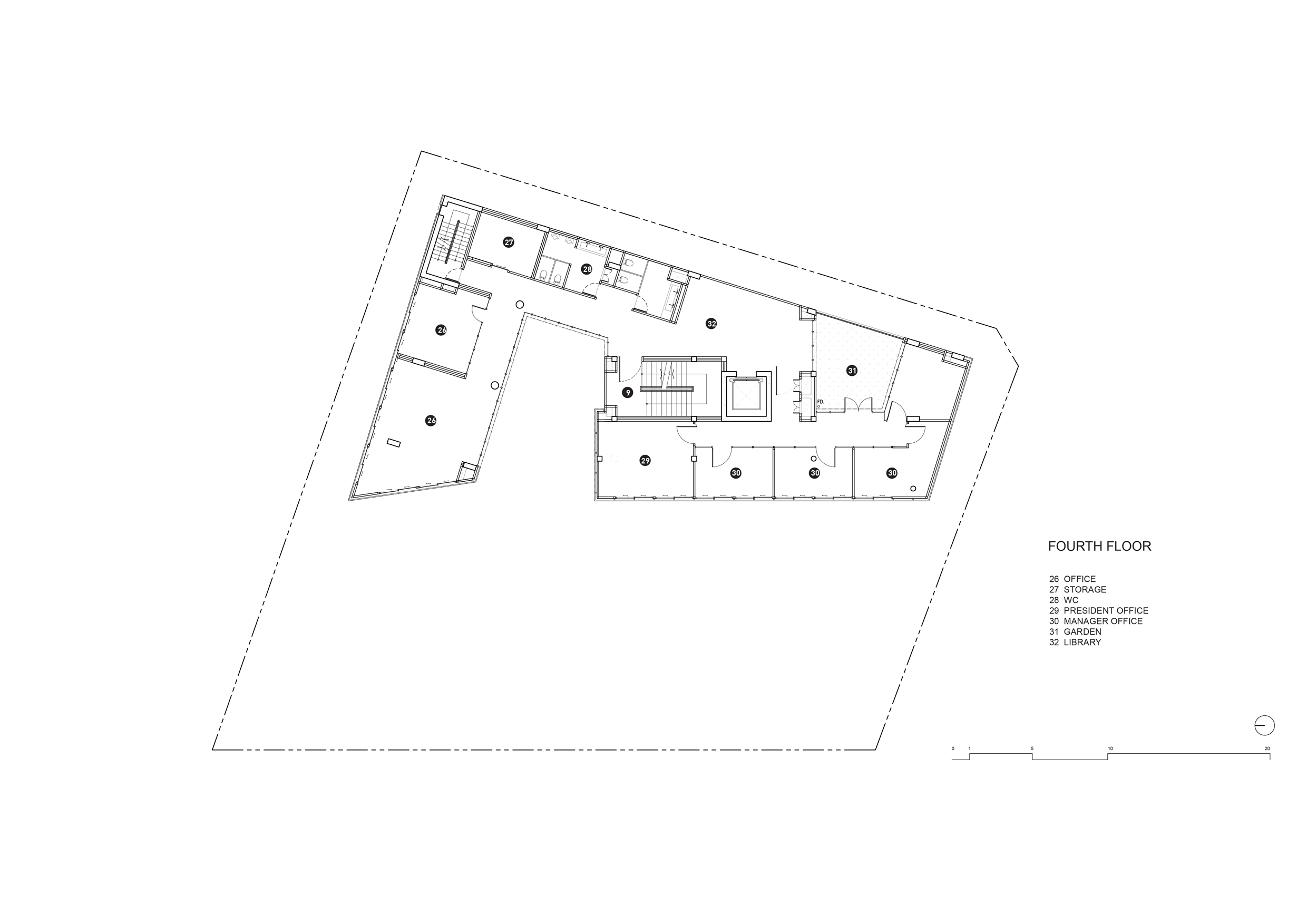
With weather conditions of the West-facing site, the front façade was designed to be impermeable to block harsh sun rays, utilizing aluminum panels to clad the entirety of the mass not only to give the building a prominent modern impression, but also in its detail of perforations and openings that work to create self-shading and enable natural ventilation. The angular turns interlock the mass to create an open void within the middle of this largely dense mass. This central void enables some greenery and nature to exist within the various programs as they face inwards towards this internal court that allows light and wind to filter through, providing a space of nature in the heart of the building. Other green pockets are added within the building, namely small courtyards on the second and fourth floors that connect to the Gallery, Innovative Space and Workshop area, in aim of giving a better quality of work-life for the employees and main users of the building.

The design of the approach and entrance of the building includes a reflecting pond that uses the same pattern as the façade panels but shift and tilt slightly to create subtle effects when the water and light filter through. The narrow bridge across the reflecting pond, along with columns that are arranged to mimic tree trunks within the forest and the perforated pattern canopy that filters subtle light through gives the entrance an ambience that is resembling nature and yet, in distinctly modern materials and environment. In the evening, the patterned canopy cast shadows onto the showroom, creating a digital translation of the natural tree canopy; a feature experience for the visitors of MacroCare.

Stu/D/O Team:
Apichart Srirojanapinyo
Chanasit Cholasuek
Park Lertchanyakul
Panfan Laksanahut

Landscape Architect: Field Landscape Studio (Teerachai Tharawongthawat)
Graphic Designer: Symbolist Co.,Ltd.
Structural Engineer: B.N.G. Engineering
Mechanical Engineer: MEE Consultants
Consultants: Chanin Limapornvanich
Contractor: Will Studio

เราใช้คุกกี้เพื่อพัฒนาประสิทธิภาพ และประสบการณ์ที่ดีในการใช้เว็บไซต์ของคุณ คุณสามารถศึกษารายละเอียดได้ที่ นโยบายความเป็นส่วนตัว และสามารถจัดการความเป็นส่วนตัวเองได้ของคุณได้เองโดยคลิกที่ ตั้งค่า

Privacy Preferences

คุณสามารถเลือกการตั้งค่าคุกกี้โดยเปิด/ปิด คุกกี้ในแต่ละประเภทได้ตามความต้องการ ยกเว้น คุกกี้ที่จำเป็น

Allow All
Manage Consent Preferences
  • คุกกี้ที่จำเป็น
    Always Active

    ประเภทของคุกกี้มีความจำเป็นสำหรับการทำงานของเว็บไซต์ เพื่อให้คุณสามารถใช้ได้อย่างเป็นปกติ และเข้าชมเว็บไซต์ คุณไม่สามารถปิดการทำงานของคุกกี้นี้ในระบบเว็บไซต์ของเราได้
    Cookies Details

  • คุกกี้เพื่อการวิเคราะห์

    คุกกี้ประเภทนี้จะทำการเก็บข้อมูลการใช้งานเว็บไซต์ของคุณ เพื่อเป็นประโยชน์ในการวัดผล ปรับปรุง และพัฒนาประสบการณ์ที่ดีในการใช้งานเว็บไซต์ ถ้าหากท่านไม่ยินยอมให้เราใช้คุกกี้นี้ เราจะไม่สามารถวัดผล ปรับปรุงและพัฒนาเว็บไซต์ได้
    Cookies Details

Save