Cold Mountain Residence

Location: Khao Yai, Nakhonratchasima, Thailand
Type: Architecture and Interior Design
Program: Residential (3-story condominium)
Client: Sinsuthera Co.,Ltd.

Site Area: 3,200 sqm.
Built Area: 3,950 sqm.
Design: 2011
Completion: 2012
Construction Cost: 60M baht

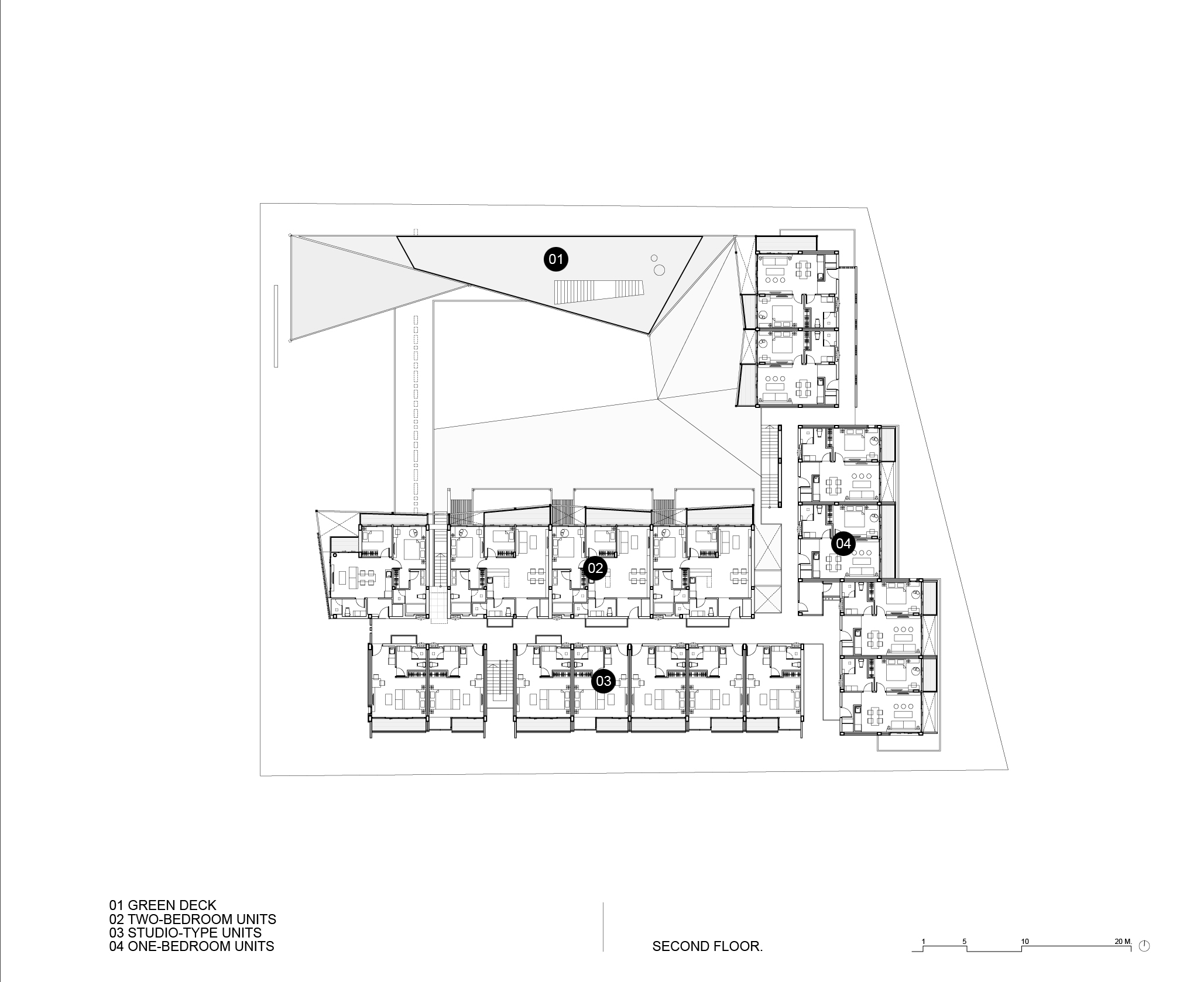
Located in the middle of the flat plain next to Khao Yai National Park, this 45-unit low-rise condominium offers unbridled view of the surrounding mountains to the north, west and south. The ‘green folded-structure’ lobby – a morphology and reflection of the hill slope in the background – provides a unique order and space to this building as it gently merges with the landscape’s slope. The lobby and public areas are designed to blend in with the landscape to avoid obstruction of the mountain view, while the roof top space above the lobby offers a relaxing atmosphere for outdoor activities.

The three-story residential buildings surrounding the courtyard forms an ‘L’ shape and each building provides views of the green lobby and the lush mountains. Main construction materials for the buildings include exposed concrete, redwood, glass, travertine stone and steel.

Stu/D/O Team:
Apichart Srirojanapinyo
Chanasit Cholasuek
Adrian Smiths

Lighting Designer: Siriluck Chinsaengchai
Structural Engineer: B.N.G. Engineering
Mechanical Engineer: MEE Consultants
Contractor: Sinsuthera Co.,Ltd.

Visualizer: Stu/D/O, DOF
Photography: Stu/D/O

เราใช้คุกกี้เพื่อพัฒนาประสิทธิภาพ และประสบการณ์ที่ดีในการใช้เว็บไซต์ของคุณ คุณสามารถศึกษารายละเอียดได้ที่ นโยบายความเป็นส่วนตัว และสามารถจัดการความเป็นส่วนตัวเองได้ของคุณได้เองโดยคลิกที่ ตั้งค่า

Privacy Preferences

คุณสามารถเลือกการตั้งค่าคุกกี้โดยเปิด/ปิด คุกกี้ในแต่ละประเภทได้ตามความต้องการ ยกเว้น คุกกี้ที่จำเป็น

Allow All
Manage Consent Preferences
  • คุกกี้ที่จำเป็น
    Always Active

    ประเภทของคุกกี้มีความจำเป็นสำหรับการทำงานของเว็บไซต์ เพื่อให้คุณสามารถใช้ได้อย่างเป็นปกติ และเข้าชมเว็บไซต์ คุณไม่สามารถปิดการทำงานของคุกกี้นี้ในระบบเว็บไซต์ของเราได้
    Cookies Details

  • คุกกี้เพื่อการวิเคราะห์

    คุกกี้ประเภทนี้จะทำการเก็บข้อมูลการใช้งานเว็บไซต์ของคุณ เพื่อเป็นประโยชน์ในการวัดผล ปรับปรุง และพัฒนาประสบการณ์ที่ดีในการใช้งานเว็บไซต์ ถ้าหากท่านไม่ยินยอมให้เราใช้คุกกี้นี้ เราจะไม่สามารถวัดผล ปรับปรุงและพัฒนาเว็บไซต์ได้
    Cookies Details

Save