Nowhere

Location: Bangkok, Thailand
Type: Architecture and Interior Design
Program: Bar and Restaurant
Client: Nowhere

Site Area: 250 sqm.
Built Area: 250 sqm.
Design: 2016
Completion: 2017
Construction Cost: 8M Baht

“NO / WHERE but NOW / HERE” is the expression given by the owners as the name and concept for this rooftop bar and restaurant on Ekkamai road. Inspired by this phrase, Stu/D/O reinterprets the idea of “nowhere” into the concept of the juxtaposition between reality and surrealism, which is represented through one of the most fundamental architectural elements: stairs.

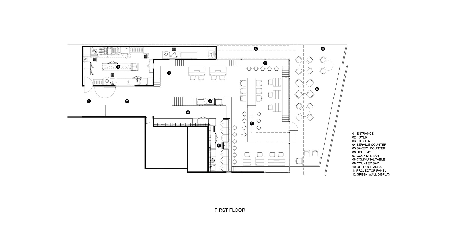
Traditionally, the stairs have been used to connect different spaces and lead people to different levels. However, in this project, the stairs were given a new interpretation, instead of leading somewhere, it leads to ‘NOWHERE’, like the idea by MC. Escher’s artwork, “Relativity.”  At “Nowhere”, the stair is the main feature in connecting the functions and spaces altogether. In two continuous loops, the stairs provide new possibilities of functions within the restaurant by varying the height of the platform, creating different functions such as seats, tables, bar, and communal area.

The restaurant plans to serve both in the daytime as a breakfast venue for the hotel guests and in the nighttime as the bar and restaurant. To show the contrast of day and night through the changing of sky, loops of stair are designed to link the entire space from the first step to the last and vanishes into the sky, accenting the concept of ‘Going Nowhere’.

Stu/D/O Team:
Apichart Srirojanapinyo
Chanasit Cholasuek
Park Lertchanyakul
Thanipath Thanawuttimanas

Lighting Designer: InContrast Design Studio
Structural Engineer: Darat Likitthaveechok

Visualizer: Stu/D/O

เราใช้คุกกี้เพื่อพัฒนาประสิทธิภาพ และประสบการณ์ที่ดีในการใช้เว็บไซต์ของคุณ คุณสามารถศึกษารายละเอียดได้ที่ นโยบายความเป็นส่วนตัว และสามารถจัดการความเป็นส่วนตัวเองได้ของคุณได้เองโดยคลิกที่ ตั้งค่า

Privacy Preferences

คุณสามารถเลือกการตั้งค่าคุกกี้โดยเปิด/ปิด คุกกี้ในแต่ละประเภทได้ตามความต้องการ ยกเว้น คุกกี้ที่จำเป็น

Allow All
Manage Consent Preferences
  • คุกกี้ที่จำเป็น
    Always Active

    ประเภทของคุกกี้มีความจำเป็นสำหรับการทำงานของเว็บไซต์ เพื่อให้คุณสามารถใช้ได้อย่างเป็นปกติ และเข้าชมเว็บไซต์ คุณไม่สามารถปิดการทำงานของคุกกี้นี้ในระบบเว็บไซต์ของเราได้
    Cookies Details

  • คุกกี้เพื่อการวิเคราะห์

    คุกกี้ประเภทนี้จะทำการเก็บข้อมูลการใช้งานเว็บไซต์ของคุณ เพื่อเป็นประโยชน์ในการวัดผล ปรับปรุง และพัฒนาประสบการณ์ที่ดีในการใช้งานเว็บไซต์ ถ้าหากท่านไม่ยินยอมให้เราใช้คุกกี้นี้ เราจะไม่สามารถวัดผล ปรับปรุงและพัฒนาเว็บไซต์ได้
    Cookies Details

Save