Colonnade House

Location: Bangkok, Thailand
Type: Architecture and Interior Design
Program: Residential (3-Storey House)
Client: Undisclosed

Site Area: 6,990 sqm.
Built Area: 4,200 sqm.
Design: 2012-2015
Completion: On Construction

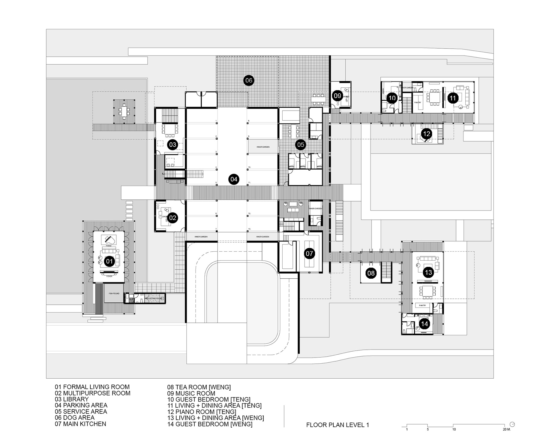
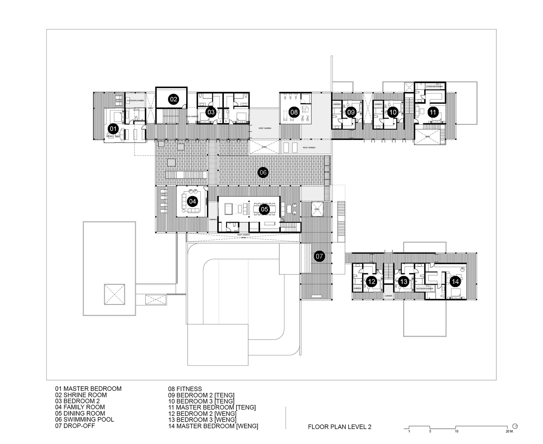
The compound house of three families is sited beside the canal of the Ratchapruek section of Bangkok. The project was designed as a steel skeleton structure that houses and frames several complex functions and spaces together in five pavilions, where two at the back are for sons’ expanded families. Three main pavilions; one for entry and living spaces, one residence, and one guest house, appear to push upward from the parking and service functions below. Two sheets of water; swimming pool above and reflecting pond below, create a floating expression of the pavilions.

Views from within the living spaces are framed by the swimming pool, which is bracketed by two wings of the buildings that run perpendicular to the skylight strips. In the base of the swimming pool, strips of glass lenses bring dappled light to the white plaster walls and granite floor of the lobby entrance below.

To enhance the expansive nature of the villas, sleek steel columns are positioned every 2.5 meters around the perimeter, allowing the space inside to be completely column-less, as the colonnade gives the appearance of being vertical louvers rather than solid structure.

Stu/D/O Team:
Apichart Srirojanapinyo
Chanasit Cholasuek
Thanipath Thanawuttimanas

Landscape Architect: Field Landscape Studio

Visualizer: Stu/D/O
Photography: Stu/D/O

เราใช้คุกกี้เพื่อพัฒนาประสิทธิภาพ และประสบการณ์ที่ดีในการใช้เว็บไซต์ของคุณ คุณสามารถศึกษารายละเอียดได้ที่ นโยบายความเป็นส่วนตัว และสามารถจัดการความเป็นส่วนตัวเองได้ของคุณได้เองโดยคลิกที่ ตั้งค่า

Privacy Preferences

คุณสามารถเลือกการตั้งค่าคุกกี้โดยเปิด/ปิด คุกกี้ในแต่ละประเภทได้ตามความต้องการ ยกเว้น คุกกี้ที่จำเป็น

Allow All
Manage Consent Preferences
  • คุกกี้ที่จำเป็น
    Always Active

    ประเภทของคุกกี้มีความจำเป็นสำหรับการทำงานของเว็บไซต์ เพื่อให้คุณสามารถใช้ได้อย่างเป็นปกติ และเข้าชมเว็บไซต์ คุณไม่สามารถปิดการทำงานของคุกกี้นี้ในระบบเว็บไซต์ของเราได้
    Cookies Details

  • คุกกี้เพื่อการวิเคราะห์

    คุกกี้ประเภทนี้จะทำการเก็บข้อมูลการใช้งานเว็บไซต์ของคุณ เพื่อเป็นประโยชน์ในการวัดผล ปรับปรุง และพัฒนาประสบการณ์ที่ดีในการใช้งานเว็บไซต์ ถ้าหากท่านไม่ยินยอมให้เราใช้คุกกี้นี้ เราจะไม่สามารถวัดผล ปรับปรุงและพัฒนาเว็บไซต์ได้
    Cookies Details

Save