Aperture House

Location: Bangkok, Thailand
Type: Architecture and Interior Design
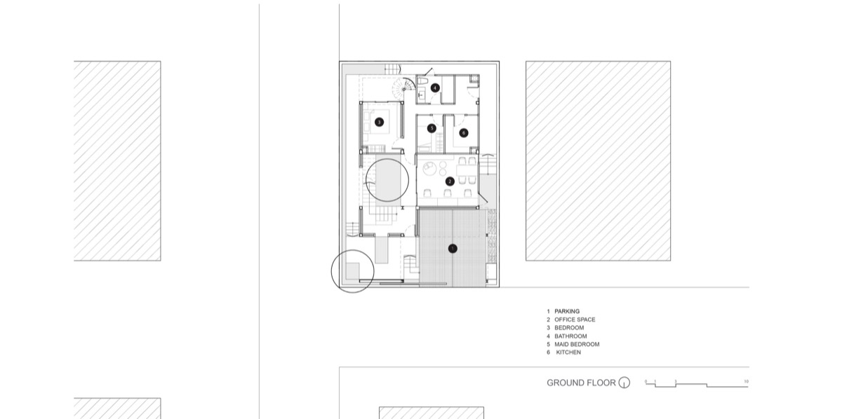
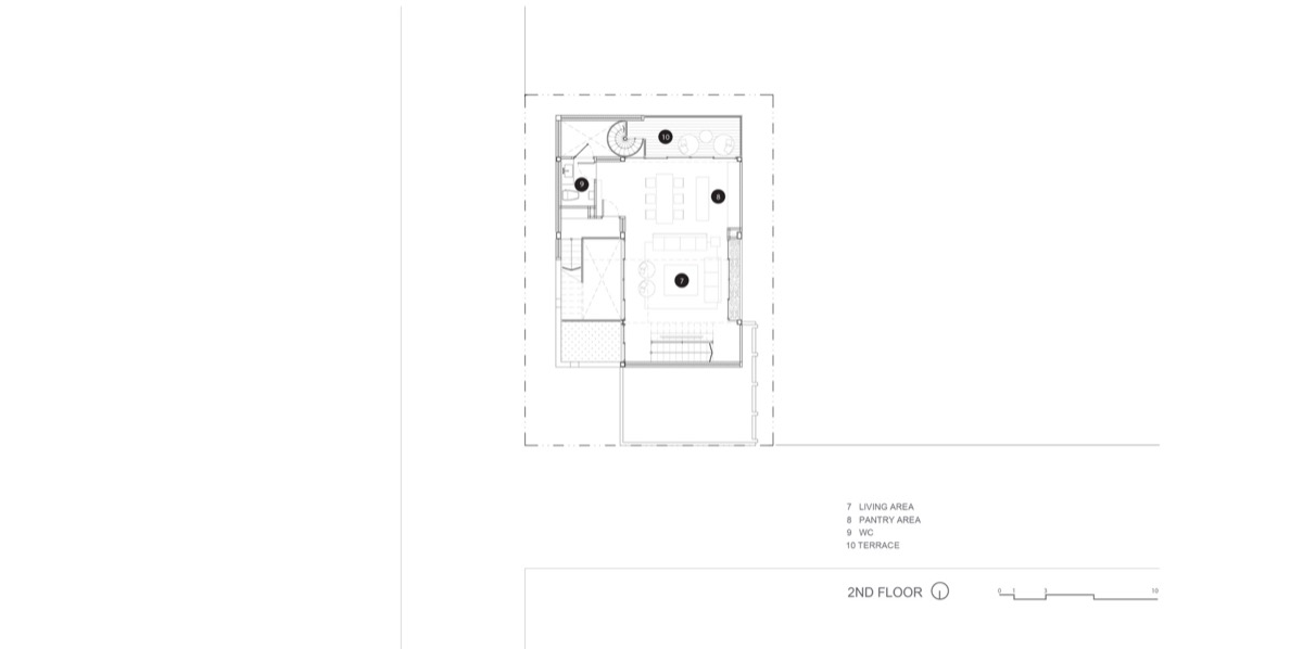
Program: Residential (4-Storey House)
Client: Chaichoompol Vathakanon

Site Area: 204 sqm.
Built Area: 350 sqm.
Design: 2014
Completion: 2016
Construction Cost: 10M baht

A house for a photographer and a landscape designer; Aperture House frames its surrounding natures and embrace the natural world within its serene envelope. In the stillness of this delicately composed environment, Aperture House captures the turnings of time through the interplay of lights and shadows, as daylight cascade through the architectural facade and openings.

The 4-storey rectangular mass was conscientiously carved out, allowing the surrounding context to seep into its continuous enclosure and create a pleasant ambience for private spaces.  The largest void reveals an expansive vertical space, as it internally and externally becomes the main focal point of the house. The continuity of the external envelope shapes and completes the regular geometric architectural form, whilst shielding the main living area, which situates itself within this spacious void, from the occasionally unforgiving Bangkok sun.

Scattered throughout the external enclosure are carefully composed openings of the architectural facade. The large openings display full-framed views of the surrounding vistas for the main functions of the house.  Whilst the expansive facade openings flood rooms with daylight, the small tapered openings compose main corridors, filtering natural light patterns to continuously transform and enhance the domestic spaces.  From the exterior, the 0.60×0.60 m square punctures are uniformly equal and elegantly dispersed and as the changing daylight travels through the gradually tapered voids into the interior, the dynamic shifting of lights and shadows create interest from the inside and out.

Stu/D/O Team:
Apichart Srirojanapinyo
Chanasit Cholasuek
Picsacha Na Songkhla
Patompong Songpracha

Landscape Architect: Chaichoompol Vathakanon
Structural Engineer: Panit Supasiriluk
Mechanical Engineer: Panit Supasiriluk
Contractor: Pornchai Pornpichitchokchai

Visualizer: Stu/D/O, DOF
Photography: Ketsiree Wongwan, Chaichoompol Vathakanon

Awards:
2016 ASA Gold Medal Award

เราใช้คุกกี้เพื่อพัฒนาประสิทธิภาพ และประสบการณ์ที่ดีในการใช้เว็บไซต์ของคุณ คุณสามารถศึกษารายละเอียดได้ที่ นโยบายความเป็นส่วนตัว และสามารถจัดการความเป็นส่วนตัวเองได้ของคุณได้เองโดยคลิกที่ ตั้งค่า

Privacy Preferences

คุณสามารถเลือกการตั้งค่าคุกกี้โดยเปิด/ปิด คุกกี้ในแต่ละประเภทได้ตามความต้องการ ยกเว้น คุกกี้ที่จำเป็น

Allow All
Manage Consent Preferences
  • คุกกี้ที่จำเป็น
    Always Active

    ประเภทของคุกกี้มีความจำเป็นสำหรับการทำงานของเว็บไซต์ เพื่อให้คุณสามารถใช้ได้อย่างเป็นปกติ และเข้าชมเว็บไซต์ คุณไม่สามารถปิดการทำงานของคุกกี้นี้ในระบบเว็บไซต์ของเราได้
    Cookies Details

  • คุกกี้เพื่อการวิเคราะห์

    คุกกี้ประเภทนี้จะทำการเก็บข้อมูลการใช้งานเว็บไซต์ของคุณ เพื่อเป็นประโยชน์ในการวัดผล ปรับปรุง และพัฒนาประสบการณ์ที่ดีในการใช้งานเว็บไซต์ ถ้าหากท่านไม่ยินยอมให้เราใช้คุกกี้นี้ เราจะไม่สามารถวัดผล ปรับปรุงและพัฒนาเว็บไซต์ได้
    Cookies Details

Save